Pastababy

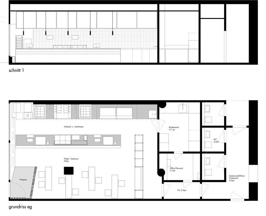
Pastababy serves handmade pasta and fresh salads, in-store or to-go. As project lead, I played a key role in shaping the brand identity and shop design, working closely with Studio Projekttriangle and B+E Architects. Fixed elements like the flour-sack storage and seven-meter counter define the space, while modular furniture adapts to busy days and events. Black steel, dark oak, and stone-grey tiles frame the Mediterranean menu, while oversized lettering, speech bubbles, and portraits engage the young, urban audience- bringing the lively spirit of Pastababy to life.

Location. Marienstrasse. Stuttgart
Area. 85m2
Office. B+E Architekten
Planning horizon. 02. – 05.2012

Shaping the Identity and Space of Pastababy as Project Lead, bringing Mediterranean Flavors and Young, Urban Energy to Life.

Zurück
Zurück

Research Corporate Transparency

Weiter
Weiter

Set Design Hugo Boss